1&2&3 Bedroom Apartments in Agios Dometios

  • €285.000 +VAT
Nicosia, Agios Dometios
For Sale Nadia Bezdikian

1&2&3 Bedroom Apartments in Agios Dometios

Nicosia, Agios Dometios
  • €285.000 +VAT

Overview

  • 83558
  • Property ID
  • Apartment
  • Property Type
  • 3
  • Bedrooms
  • 2
  • Bathrooms
  • 122
  • 21
  • Covered Veranda

Description

New Residential Building in Agios Dometios/Agios Andreas

A brand-new development of just 7 exclusive apartments, in a quiet residential area on a corner plot .

Features:

Energy Efficiency A+

Photovoltaics for all common areas

1- & 2- & 3 – Bedroom Apartments (master  bedroom en-suite)

Luxury finishes & top-quality materials

Electrical heating in all rooms

Provision for A/C units

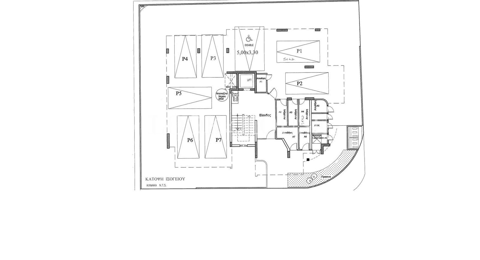
Covered parking

Private storage rooms

Apartment Availability – Agios Dometios

7 Exclusive Apartments | Quiet Residential Area

Modern living, sustainability, and comfort — all in one of Nicosia’s most desirable locations.

Delivery date end of November 2026 .

Availability  & details

No. Apt. No. Internal Area (m²) Veranda (m²) Total Area (m²) Sale Price Notes

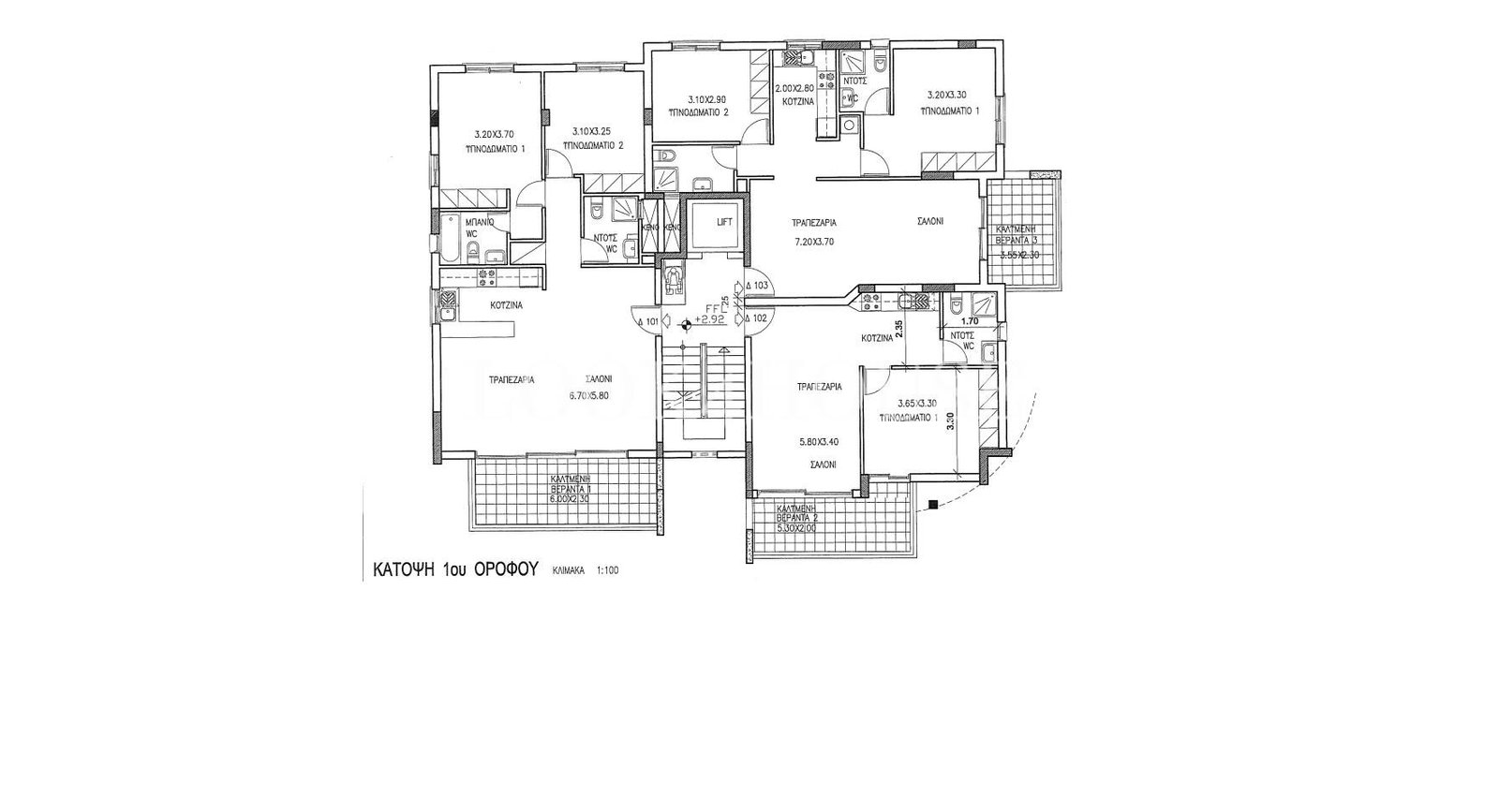
1 A101 87.00 14.80 101.60 €220,000 1st floor / 2 bedrooms (P, A)

2 A102 50.00 11.60 62.30 €143,000 1st floor / 1 bedroom (P, A)

3 A103 80.00 9.80 88.60 €196,000 1st floor / 2 bedrooms (P, A)

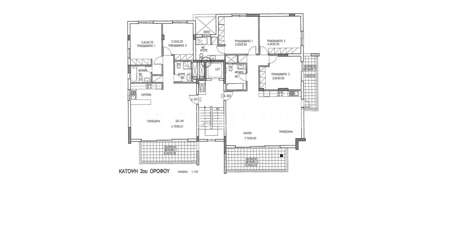
4 A201 87.00 14.80 101.60 €224,000 2nd floor / 2 bedrooms (P, A)

5 A202 122.00 21.60 146.40 €285,000 2nd floor / 3 bedrooms (P, A)

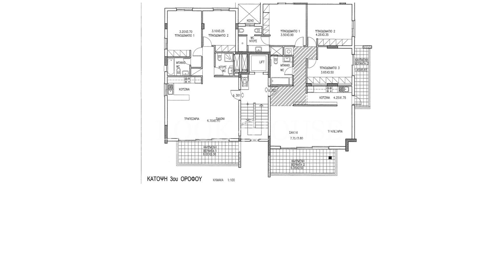
6 A301 87.00 14.80 101.60 €228,000 3rd floor / 2 bedrooms (P, A)

7 A302 122.00 21.60 146.40 SOLD 3rd floor / 3 bedrooms (P, A4)

(Prices are without vat )

Share this property to a friend!

Details

Updated on October 2, 2025 at 7:05 am
  • Property ID: 83558
  • Price: €285.000 +VAT
  • Property Size: 122
  • Bedrooms: 3
  • Bathrooms: 2
  • Property Type: Apartment
  • Property Status: For Sale
  • Covered Veranda: 21

Address

  • City Nicosia
  • Area Agios Dometios

Floor Plans

image

Description:

image

Description:

image

Description:

image

Description:

Contact Information

View Listings
Nadia Bezdikian

Enquire About This Property

Similar Listings

Compare listings

Compare
Nadia Bezdikian
  • Nadia Bezdikian