Under Division Residential Plots in Latsia/Geri

  • €159.000 +VAT
Nicosia, Geri
For Sale Christodoulos Kythreotis

Under Division Residential Plots in Latsia/Geri

Nicosia, Geri
  • €159.000 +VAT

Overview

  • 90386
  • Property ID
  • Residential Plot, Apartment, Plot
  • Property Type
  • 546

Description

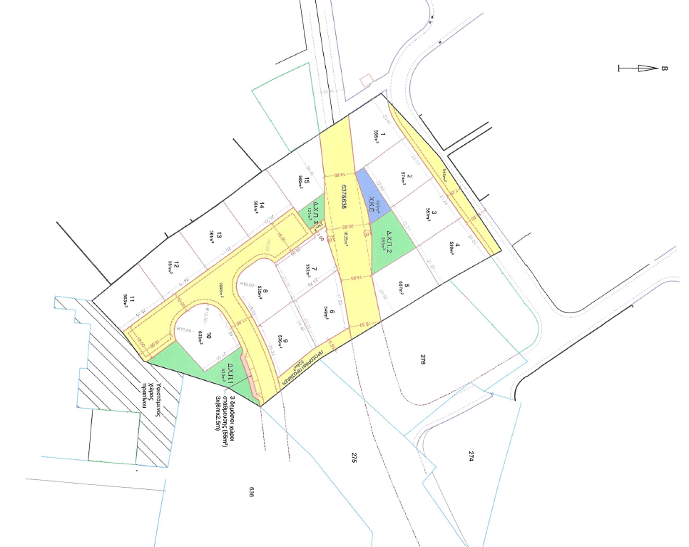
Υποδιαχωρισμό Οικιστικά Οικοπέδα | Περιοχή Λατσιά / Γέρι

Διατίθενται προς πώληση οικόπεδα σε νέα υπό διαχωρισμό οικιστική ανάπτυξη σε προνομιακή περιοχή 📍 Λατσιά – Γέρι, με εύκολη πρόσβαση προς τη Λευκωσία, τον αυτοκινητόδρομο και όλες τις απαραίτητες υπηρεσίες.

Η ανάπτυξη αποτελείται από 15 οικιστικά οικόπεδα, με εμβαδά από 530 τ.μ. – 635 τ.μ., κατάλληλα για ανέγερση σύγχρονων κατοικιών.

Πολεοδομική Ζώνη

Τα οικόπεδα εμπίπτουν σε Κα7 (47%) και Κα8 (53%) – Οικιστική Ζώνη

Κα7

  • Δόμηση: 80%

  • Κάλυψη: 45%

  • Όροφοι: 2

  • Μέγιστο ύψος: 10μ

Κα8

  • Δόμηση: 60%

  • Κάλυψη: 35%

  • Όροφοι: 2

  • Μέγιστο ύψος: 10μ

Διαθέσιμα Οικόπεδα

🔹Οικόπεδο 1
📐568 τ.μ. | Πρόσοψη: 23.46μ
Τιμή: €169.000

🔹Οικόπεδο 2
📐574 τ.μ. | Πρόσοψη: 23μ
Τιμή: €177.400

🔹Οικόπεδο 3
📐587 τ.μ. | Πρόσοψη: 23.23μ
Τιμή: €181.400

🔹Οικόπεδο 4
📐599 τ.μ. | Πρόσοψη: 23μ
Τιμή: €185.000

🔹Οικόπεδο 5
Status: SOLD

🔹Οικόπεδο 6
📐549 τ.μ. | Πρόσοψη: 23.91μ
Τιμή: €159.000

🔹Οικόπεδο 7
📐552 τ.μ. | Πρόσοψη: 20.36μ
Τιμή: €165.600

🔹Οικόπεδο 8 – Γωνιακό
📐530 τ.μ.
Τιμή: €159.000

🔹Οικόπεδο 9
Status: SOLD

🔹Οικόπεδο 10 – Γωνιακό
Status: SOLD

🔹Οικόπεδο 11
Status: SOLD

🔹Οικόπεδο 12
📐561 τ.μ. | Πρόσοψη: 24.75μ
Τιμή: €168.300

🔹Οικόπεδο 13
Status: RESERVED

🔹Οικόπεδο 14
Status: RESERVED

🔹Οικόπεδο 15
📐580 τ.μ. | Πρόσοψη: 24.45μ
Τιμή: €169.000

✔ Κατάλληλα για ανέγερση ανεξάρτητων κατοικιών
✔ Ήσυχη και αναπτυσσόμενη περιοχή
✔ Εύκολη πρόσβαση προς Λευκωσία και αυτοκινητόδρομο

Share this property to a friend!

Property Documents

latsia15_260207_125519

Details

Updated on March 6, 2026 at 11:26 am
  • Property ID: 90386
  • Price: €159.000 +VAT
  • Property Size: 546
  • Property Type: Residential Plot, Apartment, Plot
  • Property Status: For Sale
  • City Nicosia
  • Area Geri

Contact Information

View Listings
Christodoulos Kythreotis

Enquire About This Property

Similar Listings

Compare listings

Compare
Christodoulos Kythreotis
  • Christodoulos Kythreotis